PROJETRéhabilitation
Transformer un préau en logement
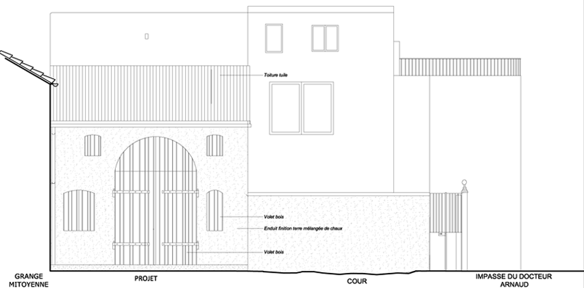
Maison impasse du Docteur Arnaud à PEZILLA-LA-RIVIERE (66)
Un agriculteur a pour projet de transformer son préau et d'y construire son appartement, à proximité de sa grange. Son projet est situé en plein centre du village.
Le préau à une hauteur suffisante pour y loger 2 niveaux. Le niveau bas permet d'accueillir une pièce à vivre comprenant la cuisine et le salon avec son poêle à bois. L'étage accueil la chambre et SDB.
L’objectif du projet :
Le préau à une hauteur suffisante pour y loger 2 niveaux. Le niveau bas permet d'accueillir une pièce à vivre comprenant la cuisine et le salon avec son poêle à bois. L'étage accueil la chambre et SDB.
L’objectif du projet :
- Assembler de TRES petites surfaces : 20m²/niveau,
- superposer les réseaux eau et electrique pour diminuer les couts de construction,
- S'éclairer naturellement sur seulement une seule façade.
Date
Etude 2011-2012
Surface de plancher
SHON : 40 m²
Mission :
Esquisse, Avant projet, Permis de construire, Dessin d'exécution
Collaboration : EDIFICAT
